Lắp đặt bồn tắm là công đoạn quan trọng nhưng lại thường bị xem nhẹ khi hoàn thiện phòng tắm. Nếu đặt sai vị trí hoặc đấu nối ống xả không chuẩn, bạn có thể gặp rò nước, nền ẩm, thậm chí xuất hiện nấm mốc gây mất vệ sinh. Để tránh rắc rối không đáng có, hãy nắm rõ các nguyên tắc dưới đây cùng Lê Gia.
Kiểm tra mặt sàn trước khi đặt bồn tắm
Bước đầu tiên và cũng là bước quan trọng nhất là kiểm tra bề mặt nền. Sàn lắp bồn tắm phải phẳng, chắc và được chống thấm tốt. Những dòng bồn tắm acrylic hay ngọc trai có phần đáy thiết kế chịu lực tốt nhưng nếu đặt trên nền lồi lõm sẽ dẫn đến cong đáy, gây tiếng “lục bục” khi đứng vào và lâu dần dễ nứt.
Ngoài ra, thợ cần kiểm tra độ dốc thoát nước của sàn vì nếu đặt bồn ở vị trí ngược độ dốc, nước sẽ đọng lại dưới đáy, gây mùi và tạo môi trường cho côn trùng. Với các phòng tắm diện tích nhỏ, bạn nên ưu tiên vị trí sát tường dài để tối ưu diện tích đi lại.

Đấu nối đường xả nước
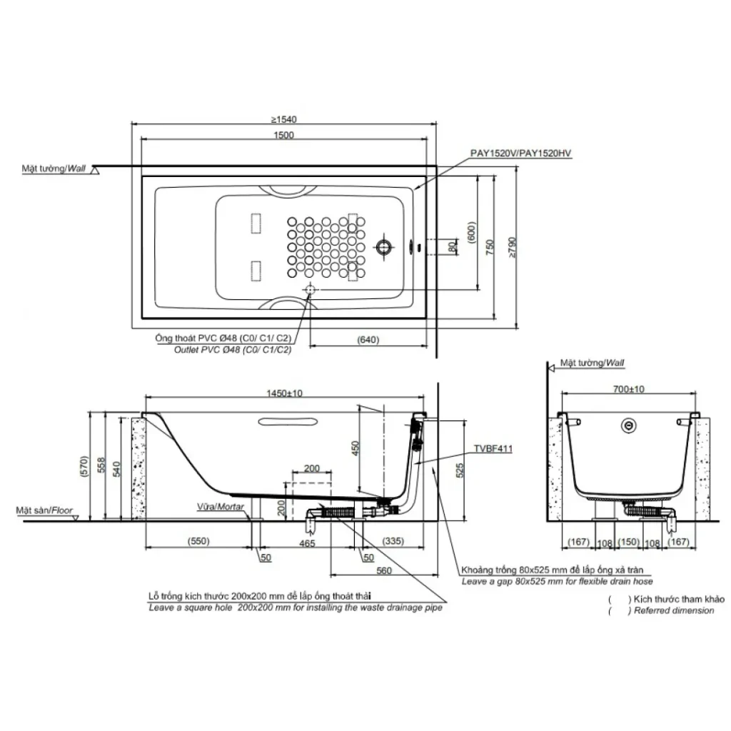
Đường xả nước là nơi dễ xảy ra rò rỉ nhất. Dù là bồn tắm nằm, bồn đứng hay bồn massage, hệ thống ống xả cần được lắp đúng quy trình.
Ống thoát nước nên chọn loại dày, có khả năng chịu nhiệt và không co ngót khi thời tiết thay đổi. Các khớp nối phải quấn keo lụa hoặc keo non đều tay, tránh quấn quá dày làm hở ren hoặc quá mỏng khiến nước rò rỉ.
Sau khi lắp xong, bắt buộc phải thử nước bằng cách xả liên tục từ 10–15 phút. Đây là bước nhiều thợ hay bỏ qua nhưng thực tế lại rất quan trọng. Nếu phát hiện nước rò chỉ một vài giọt, phải tháo ra làm lại ngay, tránh để đến khi hoàn thiện mới nhận ra thì chi phí sửa chữa sẽ rất cao.

Chống thấm mép bàn cầu và xử lý quanh thành bồn
Khoảng hở giữa bồn và tường là nơi dễ thấm nước nhất. Bạn cần dùng silicone chất lượng tốt để trám kín hai lớp. Lớp đầu tiên để lấp đầy khe, lớp thứ hai để hoàn thiện bề mặt, tạo độ liền mạch và thẩm mỹ.
Với bồn tắm massage hoặc bồn có chân inox, cần kiểm tra từng vị trí chân đế, đảm bảo đứng vững và đều lực. Nếu chân bị lệch, khi ngồi vào bồn sẽ tạo lực không cân bằng gây nứt đáy.

Lắp vòi sen, van cấp và hệ thống cấp nước cho bồn tắm
Nếu bạn dùng sen tắm âm tường, vị trí ống cấp nóng lạnh phải được định vị từ sớm trước khi ốp gạch. Việc sửa chữa sau khi hoàn thiện sẽ cực kỳ phức tạp. Đối với bồn có chức năng massage, hệ thống điện phải đi riêng, có thiết bị chống giật và nối đất để đảm bảo an toàn tuyệt đối. Không được dùng ổ điện rời hoặc dây nối tạm thời.
Sau khi lắp đặt xong, thợ phải chạy thử toàn bộ: xả nước, kiểm tra ống, kiểm tra độ chắc của thân bồn, độ kín của silicon và khả năng thoát nước của sàn. Việc kiểm tra này giúp bạn phát hiện lỗi trước khi đưa vào sử dụng.

Kết thúc
Một chiếc bồn tắm bền, đẹp và an toàn không chỉ nằm ở chất lượng sản phẩm mà còn phụ thuộc rất nhiều vào kỹ thuật lắp đặt. Khi thi công bồn tắm đúng chuẩn, bạn sẽ yên tâm sử dụng lâu dài, không lo rò rỉ hay hư hại. Liên hệ ngay với Lê Gia để được tư vấn vị trí đặt bồn hoặc kiểu dáng phù hợp với phòng tắm, mình luôn sẵn sàng hỗ trợ.

Bộ thiết bị vệ sinh Caesar combo 5