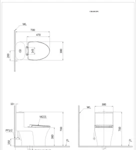
Thông số bồn cầu điện tử CAESAR C1395F+TAF512H
- Loại bàn cầu: Một khối
- Mã sản phẩm: C1395F+TAF512H
- Chế độ xả: 2 nút nhấn
- Lượng nước xả: 3/4.8L
- Hệ thống xả: Xả siphon jet
- Kích thước bồn cầu C1395 (không nắp) : 700 x 380 x 700 mm (DxRxC)
- Nắp điện tử: TAF512H
- Kiểu xả siphon jet
- Tâm thoát phân: 300 mm
- Kiểu thoát phân: Thoát xuống sàn
- Áp lực nước: 0.7-5 kgf/cm² (0.07-0.5MPa)
Tính năng bồn cầu điện tử Caesar C1395F/TAF512H
- Sấy khô
- Khử mùi
- Dễ tháo lắp
- Tạo bọt khí
- Làm sạch Turbo
- Nước ấm vệ sinh
- Tự động vệ sinh
- Điều chỉnh vị trí vòi rửa
- Vệ sinh cho nữ
- Vệ sinh đại tiện
- Làm ấm nắp ngồi
- Tự làm sạch vòi rửa
- Chất liệu vòi rửa Stainless + ABS
- Có thể thay thế đầu vòi rửa
- Bộ lọc nước
- Tiết kiệm điện
- Chế độ an toàn
Bản vẽ kích thước bồn cầu C1395F nắp rửa TAF512H


Bộ chuyển đổi nguồn điện INAX A-91-ADP (A91ADP) cho vòi cảm ứng
Chậu Rửa Mặt Lavabo Viglacera US1 Âm Bàn
Chậu rửa mặt Inax đặt bàn AL-2395VEC/BW1
Móc Áo American Standard WF-0281Heritage
Bàn cầu 1 khối C1356F + Nắp rửa cơ TAF060
Chậu Rửa Lavabo Inax AL-2293V/BW1 Âm Bàn
Bàn cầu 1 khối C1353F + Nắp rửa cơ TAF060 
Đánh giá
Chưa có đánh giá nào.